In luxury residential projects, facade screening is no longer just functional, it’s a design statement. Screens provide privacy, climate control, and architectural rhythm, while providing residents with flexibility and lifestyle-driven performance.
Achieving seamless integration between structure, finish, and movement requires careful detailing. This guide outlines the main types of facade screening systems – fixed, bi-folding/stacking, pivoting, and sliding – and provides best practices to help architects specify them with confidence.
Why Detailing Matters in High-End Homes
When working on bespoke residences, small misalignments or visible fixings can compromise the overall aesthetic. Clients at this level expect every junction, shadow line, and movement to feel intentional and refined. By addressing detailing early in the design process, you can avoid costly adjustments during construction and ensure the screen system elevates the architecture rather than interrupting it.

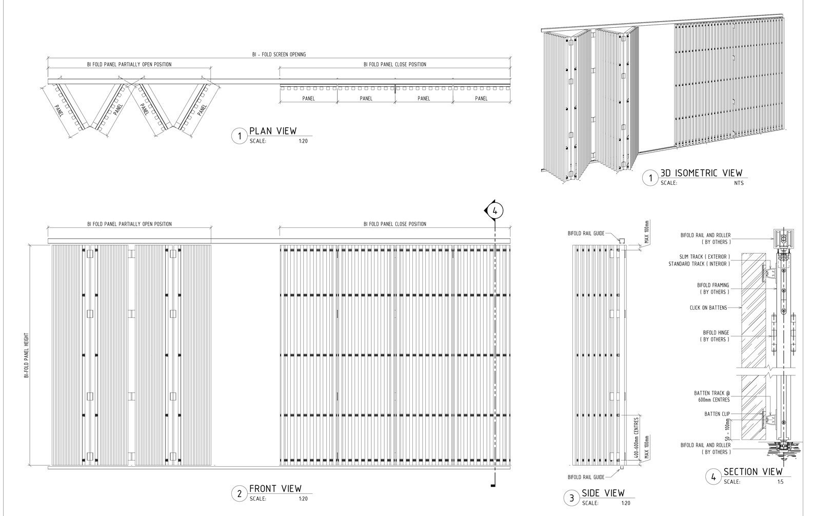
1. Bi-folding and Stacking Screens
These systems allow residents to transform a facade from fully enclosed to open and light-filled.
Detailing tips:
- Clearances – map out swing and stacking envelopes to avoid clashes with adjacent walls, soffits, or landscaping.
- Structural support – reinforce fixing points to accommodate the additional weight of solid timber, metal, etc.
- Concealed tracking – recess head tracks into ceilings for a clean, minimal aesthetic.
- Pattern continuation – ensure battens align perfectly when screens are closed.



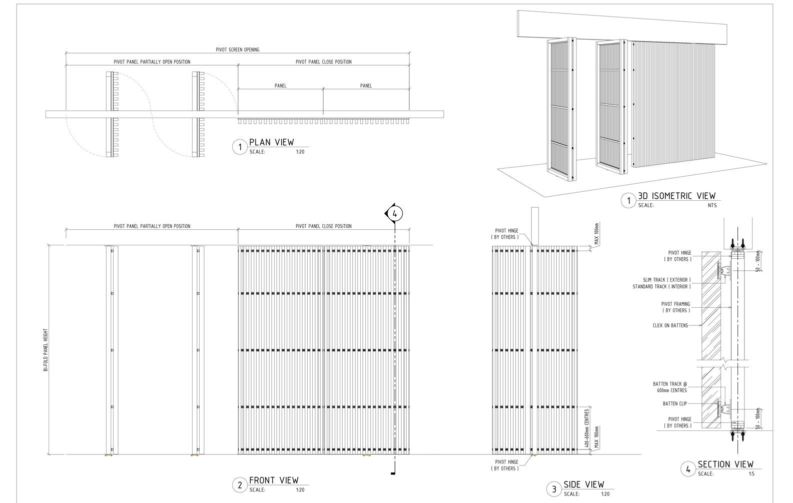
2. Pivoting Panel Screens
Pivoting screens bring a sense of drama, turning a functional element into a kinetic feature.
Detailing tips:
- Pivot point placement – carefully consider offset pivots to balance aesthetics and usability.
- Hardware selection – use architectural-grade pivot systems designed for heavy, custom-sized panels; account for wind loads to ensure structural integrity while the screen is in motion
- Finish integration – conceal pulls within battens or align panel edges with adjacent joinery for a seamless look
- Proportional balance – larger pivoting panels can act as sculptural facade elements – detail to highlight this without compromising performance.


3. Sliding Screens
Sliding systems are ideal for high-end residences where large openings frame views and natural ventilation is prioritised.
Detailing tips:
- Track design – recess floor and head tracks for uninterrupted thresholds and a seamless ceiling line
- Panel overlap – design overlaps to avoid visual breaks while ensuring smooth sliding action
- Material continuity – use the same finish across sliding and fixed elements for a unified facade
- Integration with automation – many high-end residential projects benefit from motorised sliding systems – allow space and servicing access early.


4. Fixed Screens
Although static, fixed screens often set the visual language of the facade.
Detailing tips:
- Structural support and substrate alignment – ensure backing structure aligns with adjacent operable systems.
- Shadow gaps and edge trimming – precisely detail shadow lines to create clean joins.
- Finish consistency – carry the same batten spacing across both fixed and operable zones.
- Integration with glazing – consider solar control, sightline continuity, and batten spacing that allows glass cleaning when paired with large-format windows.

Turning Functional Screens into Architectural Features
In high-end residential projects, facade screening plays a dual role, functional performance and architectural expression. By resolving structural backing, finish integration, and operable clearances early, you ensure your screen system enhances the home’s luxury character while delivering comfort and usability.
Great detailing makes the difference between a facade that simply functions, and one that becomes an architectural feature.
Every residential project is unique. If you’d like to discuss detailing or specification for a particular design, our team is here to collaborate with you.